Extension - Maison unifamiliale
Repenser la lumière et l’usage
Nous avons conçu la transformation de cette maison mitoyenne comme un espace de vie lumineux, fluide et connecté à la nature. Ainsi, ce projet d’architecture met l’accent sur l’optimisation des espaces intérieurs. Il valorise aussi la lumière naturelle et le confort au quotidien, , afin de révéler tout le potentiel du lieu.
Par ailleurs, la baie de la façade avant est repensée. L’allège est abaissée et un nouveau châssis fixe en aluminium est intégré pour maximiser les apports lumineux. À l’intérieur, une banquette sur mesure structure le salon. Elle optimise l’espace et, enfin, crée un lieu propice à la détente.
Extension côté jardin : continuité intérieur-extérieur
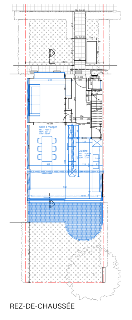
Côté jardin, une extension contemporaine vient agrandir la cuisine et la salle à manger. De plus, le châssis vitré de grande dimension ouvre généreusement la maison sur le jardin. Il établit une relation directe avec le sous-bois environnant. Une partie en vitrage strié apporte de l’intimité. Elle laisse toutefois passer la lumière naturelle.
Un aménagement intérieur convivial et fonctionnel
À l’intérieur, la cuisine semi-ouverte dialogue harmonieusement avec la salle à manger. L’architecture d’intérieur privilégie des espaces conviviaux, fonctionnels et baignés de lumière, pensés aussi bien pour le quotidien que pour les moments de partage.
Découvrez aussi
Un autre projet d’extension, d’une maison mitoyenne, ouverte sur le jardin … à découvrir ici !
















