Extension - Maison unifamiliale
Dialogue entre volumes et transparence
À l’approche de l’hiver, la lumière naturelle sublime cette extension de maison unifamiliale située à Saive. Ce projet d’architecture met en valeur des volumes sobres et une conception pensée pour le confort et la durabilité.
Liaison vitrée
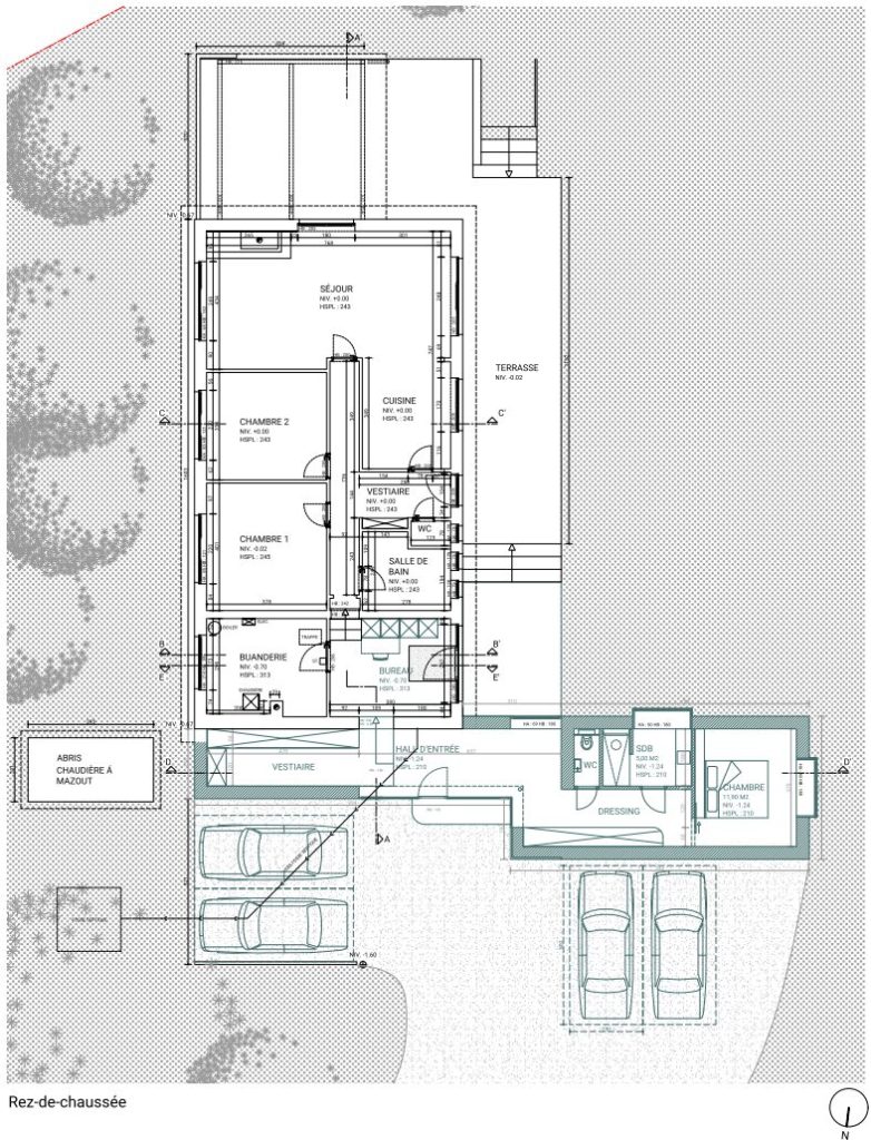
Le petit volume d’extension s’inscrit harmonieusement dans la continuité d’une maison de type bungalow. Les deux volumes sont reliés par une liaison vitrée, conçue comme un véritable espace de transition, favorisant la luminosité, les vues sur le jardin et la connexion intérieur–extérieur.
Une suite parentale pensée sur mesure
Ce nouvel espace accueille une suite parentale, conçue avec une attention particulière portée à l’aménagement intérieur, aux matériaux et à l’ambiance. Un projet où architecture et architecture d’intérieur se rencontrent pour créer un lieu de vie élégant et fonctionnel.
Découvrez aussi
Un autre projet où les châssis aluminium, dans une teinte noire, dessinent le projet … à découvrir ici !




















